Miyabi
Timeless elegance.
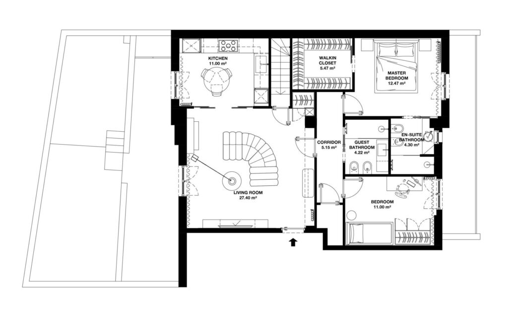
Layout
This project was born from the desire to create a refined, welcoming space free of excess. Elegance is the guiding principle behind every choice, from the layout of the rooms to the selection of materials. Every detail has been carefully considered to convey balance and sobriety, with a stylistic language that favors clean lines, high-quality materials, and a harmonious color palette.
- Location: Bitonto
- Year: 2025
- Square Meters: 90 m²
- Typology: Residential
Materials
The selection of materials plays a fundamental role in defining the character of the entire space. Wood, used primarily for the flooring, brings warmth and a natural feel, while the light grey tones applied to the walls and coverings create a neutral and luminous backdrop. Velvet, featured in some upholstered elements such as sofas and seating, adds a touch of softness and comfort. Black marble, with its deep and irregular veining, emerges as one of the key elements of the project, conveying a sense of solidity and prestige.
The living room is conceived as the heart of the home—a welcoming and representative space. At its center stands the black marble fireplace, a true visual and functional focal point. Its striking presence perfectly complements the understated and sophisticated furnishings, creating a contrast between the texture of the marble and the lightness of the surrounding tones. The fireplace is not merely an aesthetic element; it also helps to create an intimate and warm atmosphere, making the living area ideal for both relaxation and social gatherings.
Timeless Design
The refinement of this project does not lie in ostentation, but in the attention to detail and the intrinsic quality of the materials. It is an elegance that does not follow trends but is rooted in thoughtful, lasting choices—ones that stand the test of time. The space is thus perfectly balanced between aesthetics and functionality, offering a living experience that is sophisticated, warm, and authentic.
Atmosphere
The lighting has been carefully designed to enhance materials and volumes in a subtle yet effective way. Light fixtures with a minimalist design and dark finishes were selected to create plays of shadow and reflection that shift throughout the day. Natural light, encouraged by the transparency of the glass wall and the use of light-colored surfaces, further reinforces the sense of calm and openness within the spaces.
