
Sculpting space with elegance.
This project was born from the idea of creating a dialogue between the two main areas of the living space through an artistic element: a curved partition wall, conceived not only as a functional divider but as a true visual and symbolic centerpiece of the entire apartment. This rounded feature separates yet simultaneously connects the kitchen and the living room, enabling a smooth and harmonious transition between the two areas. It enhances the perception of space and fosters a sense of visual and aesthetic continuity.
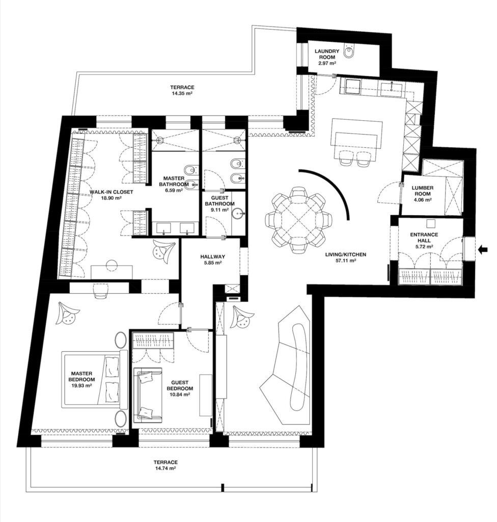
The master bedroom is designed as a high-end hotel suite: spacious, elegant, and inviting, it is intended to offer the utmost comfort and everyday luxury. Every detail—from the choice of materials to the layout of the furnishings—contributes to an intimate and relaxing atmosphere, perfect for refined, uncompromising living.
The project “THE ART SEPTUM” blends art and design in a symphony of elegance and aesthetic exploration. The goal is to create harmonious and fluid spaces where every element is meticulously studied to achieve perfect balance. Green Lepanto marble, light beige fabrics, and light oak parquet blend with black-stained oak wood, smoked mirrors, and white walls, accentuated by natural light filtering gently through the windows.
Material selection is crucial to the project, characterized by the expert use of meticulously researched materials. Green Lepanto marble exudes timeless elegance, while green fabrics and black details add depth and sophistication. Light oak parquet and black-stained oak wood intertwine harmoniously, creating a welcoming and sophisticated base for custom furnishings and timeless design pieces.
Lighting, both natural and artificial, is designed to enhance every corner of the “THE ART SEPTUM” project. The use of smoked mirrors reflects and amplifies light, while sophisticated wall coverings and frames showcase carefully selected artworks, creating an enveloping and inviting atmosphere. Each space is designed to celebrate the beauty of architecture and its details.
“THE ART SEPTUM” embodies timeless elegance through a mix of refined styles and materials. Every element, from white walls to green fabrics, is chosen to blend harmoniously in an environment where art and design converse fluently. Attention to detail and care in selecting furnishings and lighting make this project an ode to beauty and functionality, destined to surprise and inspire anyone who enters.
Copyright 2026 © CLUBDESIGN STUDIO – Privacy Policy – All Rights Reserved. Designed with love by NMS.